
50社以上の取引実績
サービス内容
Our service

製造・建設図面特化 ソリューション開発
製造の図面、加工図のAI解析・自動化に特化。検図、部品表抽出、工程設計支援など、製造プロセスの課題を解決します。
こんな企業様におすすめ:
「図面確認の工数を削減したい、製造データを有効活用したい」

AI/DX受託開発
現場の個別課題を解決するオーダーメイド開発。データ分析からシステム構築まで、業務課題を深く理解し最適なソリューションを提供します。
こんな企業様におすすめ:
「特定の業務課題(例:検査、報告)をピンポイントで解決したい」

AI導入コンサル
AI戦略立案から組織作りまでを伴走支援。AIプロジェクト成功への最短ルートをご案内します。
こんな企業様におすすめ:
「何から手をつけるべきか、全社的なAI戦略を描きたい」

AI/DX研修
AI活用の基礎となるリテラシー獲得から実務で使える応用スキルまでワンストップで支援。研修だけで終わらないフォローアップ制度も充実しています。
こんな企業様におすすめ:
「社員のAIリテラシーを底上げしたい」
ソリューション
カスタマイズ型プロダクト一覧
豊富な図面解析の実績を活かして、以下の課題を解決できるAIのご提供をしています。
← 左右にスクロールしてご覧ください →
導入事例
製造・建設現場で実際に活用されているAIソリューションの成果をご紹介します。
← 左右にスクロールしてご覧ください →
当社の強み

図面・非構造データの認識精度
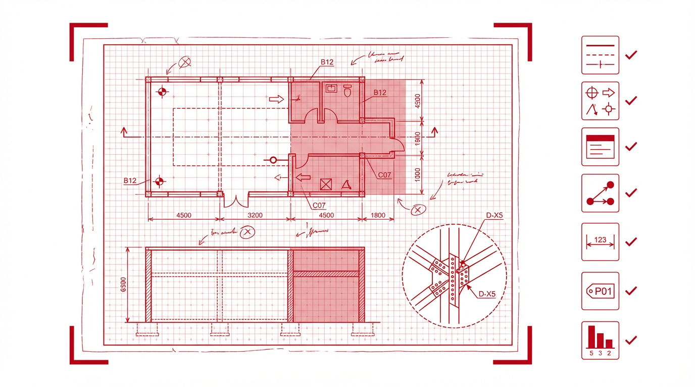
一般的なOCRでは読み取れない「線種」「シンボル・記号」「文字」「接続情報」「寸法」「部材名」「部材数」を高精度に認識できる、最新のLLMと画像処理技術(RAG/マルチモーダル)を組み合わせた図面の意味まで理解する独自エンジン。

原価計算、生産管理の業務理解
単にAIを作るだけでなく、図面からの「材料拾い出し」「標準工数(タイム)計算」「加工図チェック」といった実務フローを熟知。製造現場のリーダーや生産管理担当者が「使いやすいUI/UX」を設計できる。

既存システム連携とセキュリティ
社内規定の厳しい大手ゼネコン/メーカー基準のセキュリティ要件(Azure/AWS閉域網など)に対応。既存の基幹システムや積算ソフトへのAPI連携・アドオン開発までワンストップで提供。
人間理解と最先端AIの融合で、
新たな可能性を拓く。
エートスAIは、最先端のAI技術と深い人間理解を融合させ、個々人の潜在能力を最大限に引き出すソリューションを提供します。 そして、人々が「Must」の制約から解放され、自らの「Want」を追求できる社会の実現を目指します。
会社概要を見る
最新情報
お知らせ一覧を見る →AIの力で、新たなビジネス成果を実現。
私たちが伴走し、最大限のサポートを提供します。
まずはお気軽にご相談ください。専門のコンサルタントが貴社の課題に合わせた最適な解決策をご提案します。


























